38 coleman electric furnace wiring diagram
Jul 28, 2021 · Coleman Electric Furnace Wiring Diagram – coleman 3400 electric furnace wiring diagram, coleman central electric furnace wiring diagram, coleman electric furnace wiring diagram, Every electrical structure is composed of various different parts. Each part should be set and linked to other parts in particular manner. Description: Coleman Mobile Home Electric Furnace Wiring Diagram Coleman in Coleman Mobile Home Furnace Wiring Diagram, image size 400 X 300 px, and to view image details please click the image. Here is a picture gallery about coleman mobile home furnace wiring diagram complete with the description of the image, please find the image you need.
Oct 31, 2021 · Coleman Furnace Wiring Diagrams. 2021-10-31. Coleman Furnace Wiring Diagrams. It shows the components of the circuit as simplified shapes and the talent and signal contacts amongst the devices. At times the wires will cross. Diagram 220 Electric Furnace Wiring Diagrams Full Version Hd Quality Tvdiagram Veritaperaldro It. Sequencer 60 hz 1 phase.

Coleman electric furnace wiring diagram
Mar 29, 2021 · 47 Coleman Electric Furnace Wiring Diagram, Coleman Electric Furnace – Coleman Electric Furnace Wiring Diagram. Wiring Diagram arrives with a number of easy to adhere to Wiring Diagram Directions. It really is intended to assist all of the common person in creating a correct system. These directions will be easy to understand and use. Jan 13, 2019 · Coleman Electric Furnace Wiring Diagram. Assortment of coleman electric furnace wiring diagram. A wiring diagram is a streamlined traditional pictorial depiction of an electric circuit. It reveals the elements of the circuit as simplified forms, and the power as well as signal connections between the gadgets. A wiring diagram usually offers details about the loved… Dec 27, 2017 · Coleman Eb23c Installation Manual Pdf Manualslib. Our eb20b electric furnace isn t helms i need wiring diagram for model coleman evcon presidential 3500a816 doesn come on old heat sequencer failure ii relay issue 3500 5841b a c control box mobile potential voltage applied and problem will not fan or pump contactor replacement parts intertherm eb15b electrical symbols gray furnaceman eb23c ...
Coleman electric furnace wiring diagram. May 02, 2015 · coleman electric furnace wiring diagram – thanks for visiting my internet site, this message will certainly discuss regarding coleman electric furnace wiring diagram. We have collected numerous images, ideally this picture is useful for you, and help you in finding the answer you are searching for. Dec 27, 2017 · Coleman Eb23c Installation Manual Pdf Manualslib. Our eb20b electric furnace isn t helms i need wiring diagram for model coleman evcon presidential 3500a816 doesn come on old heat sequencer failure ii relay issue 3500 5841b a c control box mobile potential voltage applied and problem will not fan or pump contactor replacement parts intertherm eb15b electrical symbols gray furnaceman eb23c ... Jan 13, 2019 · Coleman Electric Furnace Wiring Diagram. Assortment of coleman electric furnace wiring diagram. A wiring diagram is a streamlined traditional pictorial depiction of an electric circuit. It reveals the elements of the circuit as simplified forms, and the power as well as signal connections between the gadgets. A wiring diagram usually offers details about the loved… Mar 29, 2021 · 47 Coleman Electric Furnace Wiring Diagram, Coleman Electric Furnace – Coleman Electric Furnace Wiring Diagram. Wiring Diagram arrives with a number of easy to adhere to Wiring Diagram Directions. It really is intended to assist all of the common person in creating a correct system. These directions will be easy to understand and use.

Mobile Home Electric Furnace Wiring Diagram Mobile Home Furnace Coleman Job And Give Years Of Pdf Document

12 Intertherm Furnace Wiring Diagram Electric Wiring Diagram Wiringg Net Electric Furnace Thermostat Wiring Furnace

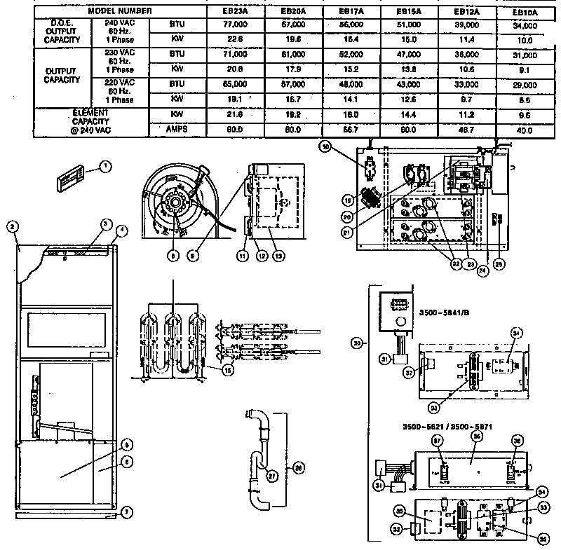
Coleman Mobile Modular Home Electric Furnace Eb23a Eb23e Eb23f 23kw 23 Kw 240 Volt North America Hvac

I Need A Wiring Diagraphm For A Evcon Mobile Home Electric Furnace The Model Number Is Eb15b Serial Number Is

How Wire A White Rodgers Room Thermostat White Rodgers Thermostat Wiring Connection Tables Hook Up Procedures For New Old White Rodgers Heating Heat Pump Or Air Conditioning Thermostats

I Need The Wiring Diagram For An Older Eb15a Electric Furnace It At Least 20 Years Old And Has Been Wired By Someone
Comments
Post a Comment